2020
Lviv, Ukraine
Design and realization
Neo-bistro & Bar Late Breakfast Club
Total area 120 sqm
Photo by Yevhenii Avramenko
Graphic Design by Sasha Orlova

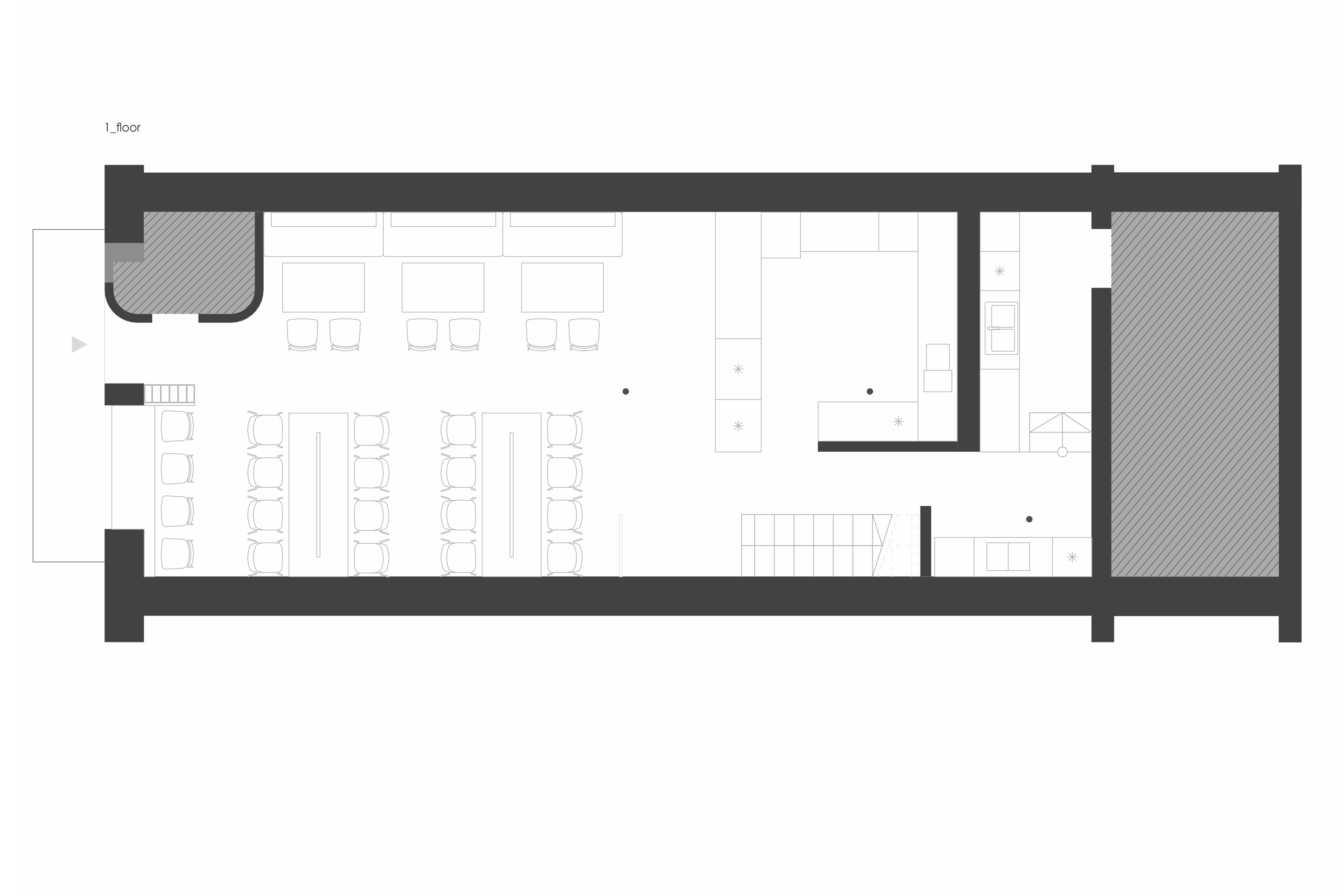
The neo-bistro and bar Late Breakfast Club is situated in Lviv, in the former Kinescope plant. The new owners wanted to organize a venue that would constantly draw visitors to hold various events, meetings, and parties. And, of course, where people will enjoy delicious food.
The goal of the project was to ensure full transparency of the whole room and kitchen. The architects of the local bureau Lis Design Studio collaborated on this idea.
The goal of the project was to ensure full transparency of the whole room and kitchen. The architects of the local bureau Lis Design Studio collaborated on this idea.






















