︎
About
Press
About
Press
Contact
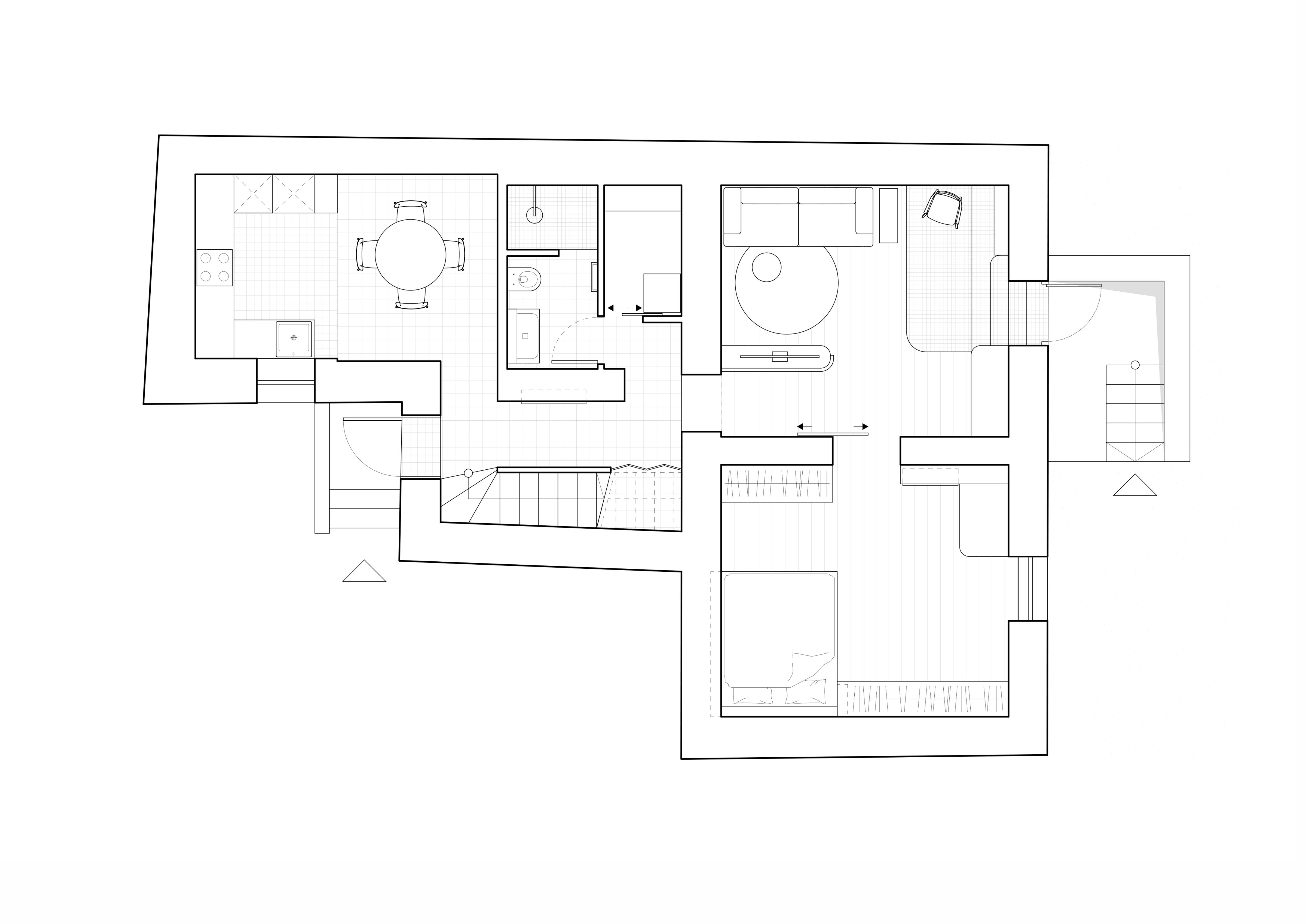
2017
Lviv, Ukraine
Concept design
Residential apartment
Total area 62 sqm
Lviv, Ukraine
Hrushevsky st. 19/7
infolislis@gmail.com
+380676953897
Instagram
Behance
Facebook